Property main image
Property image 2
Property image 3
Property image 4
Property image 5
Property main image

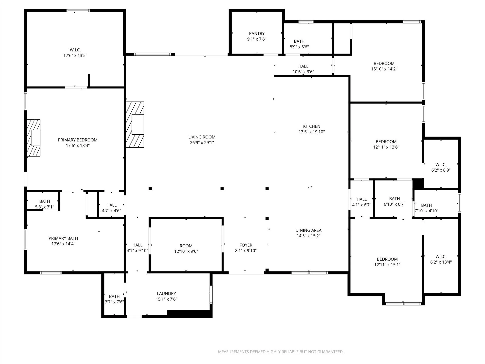
New Build on 10 Acres | 3,684 Sq Ft | 4 Bed • 3.5 Bath • Office + 1,000 Sq Ft Garage This custom new build on 10 acres is just weeks from completion and offers thoughtful design, quality finishes, and impressive space throughout. The home features 3,684 sq ft, 4 bedrooms, 3.5 baths, an office with custom cabinetry, and a 1,000 sq ft garage with additional attic storage, mechanical room, and hookups for a water softener and water heater. The main living area showcases vaulted ceilings, masonry columns, and a fireplace with built-ins and quartz accents. The kitchen includes quartz countertops, a 36-inch refrigerator, built-in coffee bar with wine fridge, a quartz sink, and custom cabinetry with pull-out microwave and trash. The laundry room offers butcher block counters, a sink, custom cabinets, and glass uppers, along with a convenient half bath. The primary suite includes an electric fireplace, vaulted ceiling, a large walk-in closet with equal sides, and a spacious bath with a tub, walk-in shower, and extensive tilework. Additional highlights: Two water wells Two Carrier A/C units 1x8 baseboards in main living areas

Residential for sale in 3705 County Road 211 Rd, Bertram, Texas 78605. This residential is priced at $1,359,900.00

  • MLS #

    2046617

  • Bedrooms

    4

  • Full Baths

    4

  • Half Baths

    1

  • Square Footage

    3,684

  • Lot Size Acres

    10.01

  • Type

    Residential

  • Status

    Active

  • Year Built

    2025

  • Sub-Type

    Single Family Residence

  • Price

    $1,359,900

  • Zip Code

    78605

  • Area

    N/A

  • Subdivision

    WILLIAM HARRIS

  • City

    Bertram

  • County

    Burnet

  • State

    TX

  • Address

    3705 County Road 211 Rd

Utilities

Electricity Connected

  • Parking Lot

    Attached, Driveway, Garage, Garage Faces Front, Gated, Open

  • Parking Total

    7

  • Is Waterfront

    No

  • Has Pool

    No

  • Has View

    No

  • Heating

    Electric

  • Fireplace

    Electric, Propane

  • Appliances

    Built-In Gas Range, Built-In Refrigerator, Dishwasher, Disposal, Ice Maker, Microwave, Refrigerator, Stainless Steel Appliance(s), Electric Water Heater, Wine Refrigerator

  • Exterior Features

    Gutters Full, Lighting

  • Lot Description

    Private

  • Roof

    Composition

  • Construction

    Masonry – Partial, Stucco

  • Foundation

    Concrete Perimeter

  • District

    Burnet CONSISD

  • Elementary

    Bertram

  • Middle

    Burnet (Burnet ISD)

  • High

    Burnet

  • Date Listed

    Dec 04, 2025

  • Days on Market

    114

  • FEMA Flood

    No

  • Zoning

  • Restrictions

    None

  • Agent

    Jen Helmig

  • Office

    Spyglass Realty

  • Contact Details

    (512) 920-7171

  • Email

    jen@livaustin.com

Year Property taxes Tax assessment
2025 $4,059.77 $310,190.00

Payment Calculator

20%